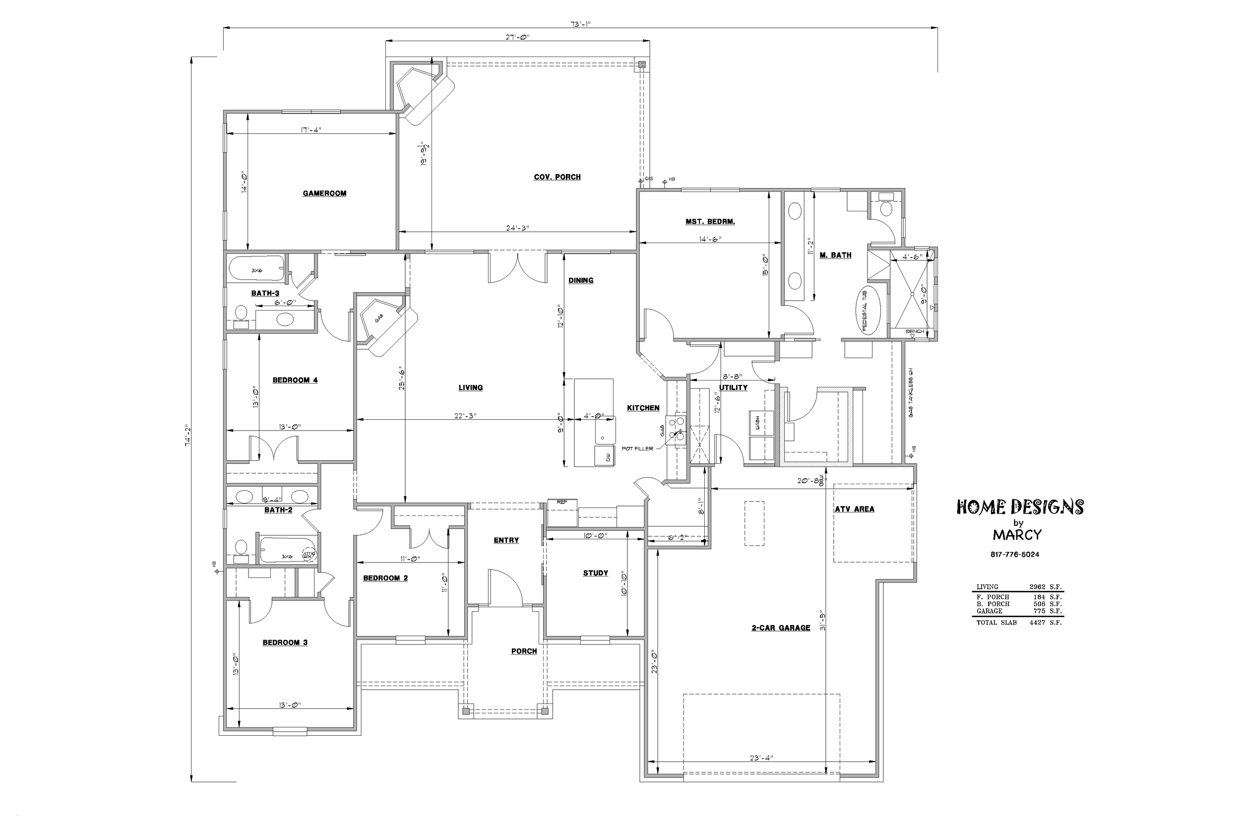
| Feature | Details | |
|---|---|---|
| Area | 2962 sq Ft. | |
| Max Width | 74 Ft. | |
| Max Depth | 75 Ft. | |
| Bedrooms | 4 | |
| Bathrooms | 3 | |
| Stories | 1 | |
| Garage | ||
| Basement | ||
| Study/Flex room | ||
| Mud Room | ||
| Barndominium |
| Feature | Details | |
|---|---|---|
| Area | 2962 sq Ft. | |
| Max Width | 74 Ft. | |
| Max Depth | 75 Ft. | |
| Bedrooms | 4 | |
| Bathrooms | 3 | |
| Stories | 1 | |
| Garage | ||
| Basement | ||
| Study/Flex room | ||
| Mud Room | ||
| Barndominium |